
DŮLEŽITÉ
Varná deska, která se přizpůsobí vašemu nádobí.
Díky funkci flexInduction se flexibilní varná zóna automaticky rozšíří, aby se na ni vešlo i velmi velké nádobí (až do průměru 24 cm). Pokud jedna zóna není pro vaše nádobí dostatečně velká, varná deska převezme kontrolu a aktivuje více induktorů pro rovnoměrný ohřev. Je to také vynikající varianta pro použití teppanyaki nebo grilovacích plátů o délce až 40 cm.
- Ovládání Blue dual lightSlider
Jedinečné ovládání Blue dual lightSlider.
Hledáte varnou desku s elegantním a intuitivním ovládáním? Objevte jedinečný modrý koncept ovládání Blue dual lightSlider a ovládejte všechny varné zóny a nastavení intuitivně dotykem a posunutím. S chytrým ovládáním Blue dual lightSlider můžete snadno vybrat varné zóny na každé straně varné desky. Co je jedinečné? Ovládací panel je viditelný pouze v zapnutém režimu, po vypnutí je zcela neviditelný.
Váš ochranný štít proti poškrábání.
Představte si varnou desku, která zůstává dokonalá i při častém používání. S naším povrchem diamondProtect jsme tento sen proměnili ve skutečnost. Tato převratná povrchová úprava výrazně zvyšuje odolnost sklokeramického povrchu varné desky proti poškrábání. Sebejistě bojuje proti soli, cukru a abrazivním houbičkám a zajišťuje, že si vaše varná deska déle zachová svůj bezchybný stav. Popusťte tedy uzdu své kulinářské kreativitě a nechte diamondProtect zachovat dokonalost.
Automatická svěžest do vaší kuchyně.
Ani moc, ani málo a nikdy hlasitěji, než je nezbytně nutné. climateControl Sensor měří intenzitu páry a detekuje výpary z vaření. Podle toho pak automaticky optimalizuje cirkulaci vzduchu. Udržujte vzduch v kuchyni svěží a v naprosté pohodě se soustřeďte jen na samotné vaření.
Extrémně snadné čištění.
Indukční varná deska s odsáváním inductionAir Plus je vybavena trojnásobným systémem ochrany proti přetečení, který pomáhá zabránit vniknutí tekutin nebo jiných kapalných látek do varné desky. Pokud se do spotřebiče něco vylije, můžete jednoduše vyjmout tukový filtr a dát jej bezpečně umýt v myčce.
Inteligentní varná deska, která dělá život zajímavějším.
Díky domácím spotřebičům Siemens s podporou wi-fi a službě Home Connect je stále více zařízení propojených a inteligentních. Synergie spotřebičů s wi-fi, inteligentního softwaru a intuitivní aplikace přináší širokou škálu možností, které můžete snadno integrovat do své domácnosti. Některé z nich usnadňují práci, jiné otevírají zcela nové možnosti. Všechny však zefektivňují a zpříjemňují každodenní život jako nikdy předtím.
Vaření bez překypění.
Rozlučte se s časy převařování a překypění. S naším senzorem vaření cookingSensor Plus můžete nyní vařit s dokonalou přesností. Tento inteligentní senzor se připevní k hrnci, měří teplotu tekutin a automaticky udržuje vámi zvolenou teplotu. Bezdrátově komunikuje s varnou deskou a podle potřeby upravuje teplotu. Nyní se můžete soustředit na důležitější věci s vědomím, že je váš hrnec v dobrých rukou.(teplotní senzor lze dodatečně dokoupit jako zvláštní příslušenství).
Maximální kontrola smažení.
fryingSensor Plus vám pomůže zajistit, aby se každá vaše palačinka – od té první až po tu poslední – upekla krásně dozlatova. Technologie vás upozorní, když pánev dosáhne správné teploty, a pak bude udržovat správnou úroveň tepla po celou dobu přípravy. Zatímco se tak budete věnovat svým hostům, máte jistotu, že se vaše pokrmy nepřipálí.
Posunutím hrnce ovládáte nastavení.
Probuďte v sobě šéfkuchaře a vařte jako kulinářský mistr. Jednoduše pohybujte hrncem zepředu dozadu a přepínejte mezi smažením, vařením nebo udržováním pokrmu v teple - s možností volby 2 různých zón. Jak? Umístěte hrnec dopředu, abyste dosáhli prudkého rozpálení a dokonalého smažení. Posuňte jej dozadu doprostřed pro jemné a přesné vaření.
Automatický přenos varných zón.
Kterou varnou zónu máte použít? Inteligentní senzory flexZones umístěné pod sklokeramikou automaticky rozpoznají tvar a velikost hrnců a pánví a podle toho okamžitě spojí nebo rozdělí varné zóny. A pokud nádobí přemístíte, nastavení se okamžitě přenese. Jednoduše postavte nádobí na varnou desku, zapněte ji a užívejte si flexibilní vaření.
Více výkonu, když ho potřebujete.
Pomocí funkce powerBoost můžete zvýšit výkon indukční zóny až o 50 %. To vám může ušetřit až 35 % času, který obvykle strávíte ohříváním hrnců. Věnujte méně času čekání a více času míchání, dochucování a servírování svých skvělých pokrmů.
Nechte varnou desku pracovat.
Méně času strávíte nastavením funkcí varné desky: flexMotion si pamatuje nastavení jednotlivých nádob, takže je můžete volně přesouvat po varné desce. Nastavení teploty a časovače na nové varné zóně se automaticky přenese. Získáte tak více času na vaření.
- Časovač s automatickým vypnutím varné zóny
Chytrý časovač, který má vše pod kontrolou.
Časovač s funkcí vypnutí bezpečně vypne varnou zónu po uplynutí zvolené doby vaření. Zabrání tak převaření a připálení pokrmu, když vás zaměstnává něco důležitého. Uvolněte se a nechte varnou desku pracovat za vás.
Eliminuje rizika a případná nebezpečí.
Tlačítkem dětská pojistka lze rychle a snadno ochránit každou indukční desku proti neoprávněnému ovládání. Dětská pojistka zablokuje všechny funkce desky stiskem jednoho tlačítka. Zamčení se odblokuje opětovným stiskem tlačítka a podržením na pár sekund.
- Ukazatel spotřeby energie
Pro energeticky účinnější vaření.
Na ukazateli spotřeby energie lze zjistit, kolik energie jste spotřebovali od začátku vaření do vypnutí varné desky. Tato informace by měla pomoci naučit se vařit úsporněji, jako např. vařit s poklicemi nebo udržovat nastavení teploty během vaření co nejvíce stabilní.
Rychlá, bezpečná a velmi snadná údržba.
Ihned horké. Ihned studené. Užijte si benefity indukčního vaření od Siemens. Teplo je předáváno přímo do pánví a hrnců a jejich obsah je ohříván pomocí indukčních cívek, aniž by se zahřívala deska. Co to pro vás znamená: doba zahřátí je krátká, vyšší bezpečnost a deska se čistí o dost snadněji.
Vzdálená diagnostika šetří váš čas.
V případě problému s varnou deskou nabízí Home Connect pohodlnou možnost diagnostiky na dálku. Zákaznická podpora společnosti Siemens přistupuje k vašemu svolení online se zařízením, aby zjistila zdroj chyb. Pokud poruchu nelze vyřešit okamžitě a je nutná osobní návštěva našeho zákaznického servisu, dorazí profesionální technik společnosti Siemens dokonale připravený as požadovanými náhradními díly.
Zkontrolujte váš spotřebič - i když nejste doma.
Díky aplikaci Home Connect a funkci vzdálené monitorování máte vždy přehled, co se v kuchyni právě děje. Po dokončení vybraného programu dostanete všechny užitečné informace.
Dostupnost náhradních dílů 15 let
Prodloužená životnost díky dostupnosti náhradních dílů.
Zavázali jsme se k dlouhodobému vztahu. Proto jsou naše náhradní díly pro velké domácí spotřebiče běžně dostupné až 15 let. Když už se tedy něco pokazí, budeme pro vás mít náhradní díly, aby váš spotřebič opět fungoval a fungoval hladce. Je to víc než jen oprava; jde o to zajistit, aby vaše spotřebiče měly výdrž a udržely krok s vaším životním stylem.
PODROBNOSTI
Flexibilita varných zón
- 2 x flexInduction varné zóny: používejte nádobí jakéhokoli tvaru nebo velikosti kdekoli na varné zóně dlouhé 40 cm.
- varná zóna, přední levá: 200 mm, 240 mm, 2.2 kW (max. výkon 3.7 kW)
- varná zóna, zadní levá: 200 mm, 240 mm, 2.2 kW (max. výkon 3.7 kW)
- varná zóna, zadní pravá: 200 mm, 240 mm , 2.2 kW (max. výkon 3.7 kW)
- varná zóna, přední pravá: 200 mm, 240 mm, 2.2 kW (max. výkon 3.7 kW)
Komfort
- ovládání dual lightSlider: jednoduché a přehledné ovládání na dvou osvětlených dotykových panelech, které jsou při vypnutí zcela neviditelné.
- jednoduché a přehledné ovládání pomocí dvou modrých světelných dotykových panelů, které jsou při vypnutí zcela neviditelné
- 17 stupňů výkonu: přesné nastavení 17 stupňů výkonu (9 hlavních a 8 mezi stupňů výkonu)
- funkce udržování teploty: udržujte pokrmy teplé při přednastavené nízké úrovni výkonu
- timer (časovač vypnutí): vypne varnou zónu na konci nastaveného času (např. pro vařená vejce)
- minutka: na konci nastaveného času zazní alarm (např. u těstovin)
- CountUp Timer: ukazuje, kolik času uplynulo od spuštění časovače (např. u brambor).
Úspora času a efektivita
- powerBoost (nastavitelné pro všechny varné zóny): využijte o 50 % více výkonu při vaření např. vody, než nabízí nejvyšší standardní stupeň výkonu
- panBoost: rozehřejte pánve rychleji než nabízí nejvyšší standardní stupeň výkonu, a zároveň ochraňte jejich povrchovou úpravu
- varné zóny se automaticky spojí nebo rozdělí podle tvaru a velikosti umístěného nádobí
- powerMove Plus: zvyšte nebo snižte stupeň výkonu jednoduše pohybem hrnce dopředu nebo dozadu.
- flexMotion: při přesunu hrnce do jiné varné zóny můžete stisknutím tlačítka přenést všechna předchozí nastavení do nové zóny
- při přesouvání hrnců na flexibilní varné zóně se nastavení okamžitě přizpůsobí a varná zóna se přizpůsobí velikosti nádobí
- automatický výběr varné zóny: po zapnutí varná deska automaticky zvolí varnou zónu, na kterou je umístěno nové nádobí
- quickStart: při zapnutí varná deska automaticky vybere varnou zónu s nádobím (umístěným ve vypnutém stavu)
- reStart: v případě neúmyslného vypnutí obnovte všechna předchozí nastavení opětovným zapnutím varné desky do 4 sekund
Speciální výbava
- cookingSensor Plus ready: možnost dovybavit speciálním teplotním senzorem, který zajistí precizní řízení teploty během procesu vaření v pěti teplotních úrovních: zabraňuje překypění pomocí automatické regulace teploty, která je řízena senzorem, umístěným a připojeným k hrnci.
- fryingSensor s pěti teplotními výkony: zabraňuje připálení díky automatické regulaci teploty integrovaného senzoru
- only via HC app: jednoduše vyhledat správné nastavení teploty pro určitý pokrm prostřednictvím aplikace Home Connect
Konektivita
- vzdálená kontrola a ovládání: zkontrolujte, zda je varná deska vypnutá i když nejste doma, a najděte recepty nebo další funkce v aplikaci Home Connect
Design
- zapustitelná do roviny pracovní desky
- studioLine: minimalistický design díky tmavé barvě zónového tisku
Bezpečnost
- 2-stupňový ukazatel zbytkového tepla pro každou varnou zónu: indikuje, které varné zóny jsou stále horké nebo teplé
- dětská pojistka: zabraní nechtěné aktivaci varné desky
- ochrana při utírání: otřete překypělou tekutinu bez neúmyslné změny nastavení (blokování všech dotykových tlačítek na 30 sekund).
- hlavní vypínač: vypnutí všech varných zón pouhým stisknutím tlačítka
- bezpečnostní vypínání: z bezpečnostních důvodů se ohřev vypne po nastaveném čase bez další uživatelské interakce (lze nastavit)
- ukazatel spotřeby energie: ukazuje spotřebu elektřiny posledního procesu vaření.
Instalace
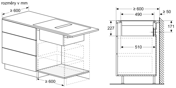
- rozměry spotřebiče (V x Š x H): 227 x 792 x 512 mm
- rozměry pro vestavbu(V x Š x H): 227 mm x 796 mm x 516 mm
- min. tloušťka pracovní desky: 16 mm
- příkon: 7.4 kW
- powerManagement: v případě potřeby omezí maximální výkon (závisí na pojistkové ochraně elektrické instalace)
- délka připojovacího kabelu: 110 cm, připojovací kabel je součástí spotřebiče
Příslušenství
- clean Air Plus odor filter, adaptér pro odvod vzduchu součástí spotřebiče
- Pro instalaci do kamenných, granitových nebo syntetických pracovních desek. Ostatní materiály pracovních desek vyžadují kontrolu vhodnosti u výrobce pracovní desky.
- možnost instalace do standardní 60 cm skříně
Integrovaný systém odvětrání
- Indukční varná deska s plně integrovaným vysoce výkonným systémem odvětrání par.
- Vhodné pro konfiguraci s potrubním nebo recirkulačním odtahem . Součástí varné desky je instalační příslušenství pro neřízenou recirkulaci, mimo jiné čtyři pachové filtry cleanAir Plus a adaptér pro odvod vzduchu. Příslušenství pro další možnosti instalace je k dispozici, podrobnosti naleznete v poznámkách k plánování.
- Estetický, plně integrovaný design ústí ventilačního systému se sklokeramickým, teplu odolným krytem, umožní volný pohyb a umístění varného nádobí.
- Ventilační systém se 17 elektronicky řízenými stupni výkonu ventilátoru a 2 stupni výkonu boost/intenzivní (s automatickým zpětným chodem), řízený pomocí .
- Inteligentní systém ventilačního systému pracuje zcela automaticky pomocí mnoha senzorů:
- - automatické zapnutí odvětrání při použití varné zóny.
- - plně automatická regulace stupně výkonu pomocí senzoru a varné desky díky pokročilého algoritmu zaručí maximální pohodlí.
- - 3 různě volitelné úrovně citlivosti algoritmu pro maximální pohodlí (šum, vyvážený, orientace na výkon).
- - automatické spuštění ventilátoru po ukončení vaření pro odstranění všech zbytkových zápachů (ve velmi tichém režimu pomocí speciálního ventilátoru, 12 minut v režimu odsávaného vzduchu, 30 minut v režimu cirkulace, spuštění může být ukončeno ručně).
- - manuální nastavení stupně výkonu je možné pomocí ovládání dual lightSlider.
- Výkonný nízkošumový ventilátor s energeticky účinnou technologií BLDC. Vysoký výkon odsávání s velmi nízkým hlukem a příjemnými frekvencemi díky psychoakusticky a aerodynamicky optimalizovanému proudění vzduchu v interiéru a zapouzdřenému ventilátoru. Velmi stabilní vůči tlaku i při delších a složitějších potrubních trasách.
- Snadno a prakticky vyjímatelný tukový filtr a ochrana proti přetečení:
- - lze snadno vyjmout pomocí jedné ruky.
- - integrovaný, velkoplošný, silný tukový filtr z nerezové oceli s 12 filtračními vrstvami. Účinnost tukového filtru je 94 %.
- - všechny části se snadno čistí, lze je mýt v myčce nádobí a jsou odolné vůči teplu.
- - (horní) jednotka ochrany proti přetečení má kapacitu 200 ml, což postačuje pro všechny klasické incidenty při vaření a kondenzační podmínky.
- - výkonný drenážní systém zajistí ochranu i při množství přesahující 200 ml tekutin.
- - (dolní) jednotka ochrany proti přetečení má kapacitu 700 ml, takže pokryje i větší incidenty při vaření. Zásobník je vhodný pro mytí v myčce nádobý, je snadno přístupný a vyjímatelný.
- - celková ochranná kapacita je 900 ml (200ml + 700ml).
- - ventilátor a motor ventilátoru jsou vodotěsné.
- Výkon odvětrávacího systému:
- - hodnoty výkonu (dle EN 61591): min. normální stupeň 154 m3/h , max. normální stupeň 500 m3/h , max. boost/intenzivní 622 m3/h.
- - hodnoty výkonu při recirkulaci: min. normální stupeň: 132 m3/h , max. normální stupeň: 499 m3/h , max. boost/intenzivní: 595 m3/h.
- - hodnoty hlučnosti při odtahu (dle EN 60704-3): min. normální stupeň: 42 dB re 1 pW, max. normální stupeň: 69 dB re 1 pW, max. boost/intenzivní nastavení: 74 dB re 1 pW.
- - hodnoty výkonu při cirkulaci: min. normální stupeň: 41 dB re 1 pW, max. normální stupeň: 68 dB re 1 pW, max. boost/intenzivní stupeň: 72 dB re 1 pW.
- - účinnost tukového filtru (dle EN 61591): 94 %.
- Spotřeba energie a energetická účinnosti (dle EU 65/2014):
- - třída spotřeby energie: B (na stupnici třídye energetické účinnosti od A+++ do D).
- - třída účinnosti odsávání: A .
- - průměrná spotřeba energie: 57 .
- - třída účinnosti tukového filtru: B .
- - hodnoty hlučnosti při normální stupni a maximálním stupni: 42 dB a 69 dB .
- pro recirkulaci: 2 x 2 kusy přímo integrovaných vysoce účinných pachových filtrů cleanAir Plus
- - velmi účinná redukce pachů a aroma při vaření (např. rybích pokrmů).
- - velký povrch filtru zajistí optimální redukci pachových stop.
- - funkce ochrany proti pylu: filtr zadržuje extrémně vysoké množství pylu ve vzduchu a deaktivuje alergeny, které filtr zadržuje.
- - životnost pachové filtru při intenzivním vaření je cca 360 hodin (ne regenerační filtr).
- - velmi nízká hlučnost.
- - velmi snadný přístup a vyjímání filtrů shora.
- - indikátor nasycení cleanAir filtrů nebo tukového filtru lze odečíst z ovládacího panelu varné desky nebo prostřednictvím aplikace Home Connect, díky které můžete i výhodně dokoupit náhradní fitry (modelové označení HZ9VRCR0).
- Pro provoz s odvětráním jsou nutné 4 integrované, vysoce výkonné akustické filtry pro získání výrazně nižší hladiny hluku a vylepšené psychoakustiky.
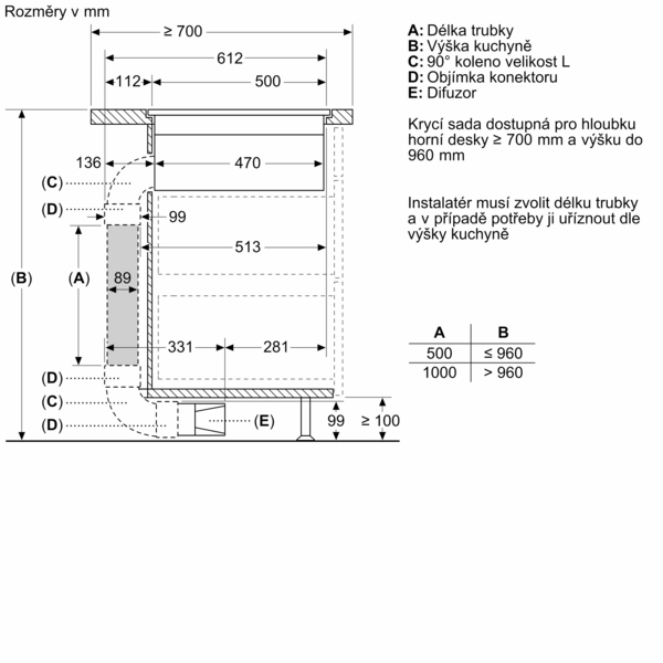
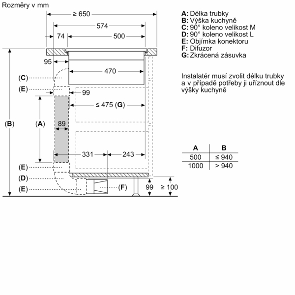
Poznámky k plánování a instalaci
- Vhodný pro instalaci s potrubím nebo s recirkulací ve 4 různých variantách (bez potrubní recirkulace - neřízená, s částečnou a plně řízenou recirkulací nebo s odtahem pomocí potrubní). Součástí varné desky je instalační příslušenství pro neřízenou recirkulaci, mimo jiné čtyři pachové filtry cleanAir Plus a adaptér pro odvod vzduchu. Dodávané příslušenství umožňuje snadnou a rychlou instalaci a lze jej plánovat ve všech hloubkách pracovní desky ≥ 60 cm. Pro jiné typy instalace doporučujeme použít jednu z následujících sad příslušenství:
- - HZ9VDKR1 montážní sada pro provoz s částečnou cirkulací pro varné desky s odsáváním, pro hloubku pracovní desky ≥ 60 cm s max. výškou pracovní desky 960 mm. HZ9VDKR0 montážní sada pro provoz s částečnou cirkulací pro varné desky s odsáváním, pro hloubku pracovní desky ≥70 cm s max. výškou pracovní desky 960 mm.
- - HZ9VEDU0 pro provoz s odvětráním.
- Pro konfiguraci s plnou nebo částečnou recirkulací vzduchu nebo pro provoz odvětrání nabízíme širokou nabídku komponentů plochého potrubí pro vaše individuální plány a dispozici prostoru.
- Doporučení pro plánování:
- - spotřebič umožňuje instalaci jak do ostrůvku, tak i ke stěně.
- - spotřebič vyhovuje Zkoušce plamenem (podle IEC 60695-11-5) a třídě hořlavosti V2 (podle UL94).
- - max. hloubka zapuštění u modelů s rámečkem je 223 mm, max. hloubka zapuštění u modelů bez rámečku je 227 mm.
- - spotřebič musí být volně přístupný zespodu (tj. pro přístup ke spodní jednotce pro zachycení kapaliny.
- - pod varnou desku s integrovaným ventilačním systémem není nutné instalovat mezidno. Zásuvky a / nebo police musí být odnímatelné. Zadní panel korpusu může být zachován, ovšem je nutné zhotovit výřez pro výstup vzduchu (doporučení o umístění a velikosti otvoru naleznete v montážním návodu).
- - provoz s neřízenou recirkulací vyžaduje svislý otvor min. 25 mm za zadní stěnou nábytku. Pro ideální výkon doporučujeme velikost otvoru 50 mm.
- - minimální tloušťka pracovní desky u modelů s rámečkem je 16 mm, u modelů bez rámečku dle standardních instalačních návodů. Instalace do ještě tenčích pracovních desek je možná, doporučujeme objednat sadu pod označením 626792 (lze objednat přes autorizovaný servis).
- - celková hmotnost spotřebiče je 26 kg. Při použití tenší pracovní desky je zapotřebí podpěrné konstrukce. Je třeba brát na zřetel i hmotnost spotřebiče. Prosím, v tomto případě kontaktujte výrobce pracovní desky.
- - u provozu s částečně řízenou nebo neřízenou recirkulací musí být v oblasti soklu dodržen otvor pro zpětný tok vzduchu ≥ 400 cm². Otvor lze realizovat pomocí dekoračních mřížek, lamelových mřížek nebo jemně zkrácených soklů v závislosti na sortimentu výrobce kuchyňského nábytku.
- - výstup vzduchu na zadní straně spotřebiče lze přímo napojit s vnějším plochým potrubním prvkem (NW 150).
- - tlakově stabilní ventilátor umožňuje také delší a složitější potrubí až do 8 m se třemi ohyby 90 ° při zachování odpovídajícího výkonu.
- - při instalaci varné desky s odsáváním v provozu odvětrání spojeným s krbem, musí být zdroj napájení vybaven vhodným bezpečnostním vypínačem. Tato bezpečnostní pojistky není nutná pro provoz s recirkulací vzduchu.
- - při provozu s odvětráním by měla být instalována zpětná klapka s maximálním otevíracím tlakem 65 Pa.
TECHNICKÉ ÚDAJE
Hlavní body
- Rozměry spotřebiče 227x792x512 mm
- Typ varné desky indukční varná deska s integrovaným odsáváním
- Počet varných zón, které mohou být použity současně 4
- Typ rámečku zápustný, instalace do roviny
- Způsob vedení vzduchu Konvertibilní
- Max. výkon odvětrání 500 m³/h
- Akustický výkon při maximálních otáčkách (2010/30/EC) 69 dB
- Připojené spotřebiče s Home Connect Ano
Obecné
- Barva spotřebiče černá
- Šířka 80 cm
- Počet varných zón, které mohou být použity současně 4
- Rozměry varných zón 4 x (20,0 x 24,0 cm)
- Výkon varných zón 4 x 2.2 (3.7) kW
- Typ rámečku zápustný, instalace do roviny
- Počet sálavých varných zón 0
- Počet indukčních varných zón 4
- Funkce Boost všechny varné zóny
- Druh ovládacích a signalizačních prvků Dvojitý posuvník dotykové ovládání
- Způsob vedení vzduchu Konvertibilní
- Max. výkon odvětrání 500 m³/h
- Výkon při intenzivním stupni - provoz odvětrávání 622 m³/h
- Max. výkon recirkulace vzduchu 499 m³/h
- Výkon ventilátoru při intenzivním stupni - recirkulace 595.0 m³/h
- Akustický výkon při maximálních otáčkách (2010/30/EC) 69 dB
- Zvýšení akustického výkonu (2010/30/ES) 74 dB
- Hlučnost 69 dB(A) re 1pW
- Spotřeba energie varné desky 185,0 Wh/kg
- Dodávané příslušenství 1 x Clean Air Plus pach filtr
Rozměry a váha
- Rozměry spotřebiče 227x792x512 mm
- Rozměry zabaleného spotřebice (v x š x h) 430 x 950 x 660 mm
- Minimální výška niky 500 mm
- Minimální šířka niky 780 mm
- Hloubka niky 227 mm
- Výška spotřebiče nad pracovní plochou 0,0 mm
Technické specifikace
- Příkon 7400 W
- Napětí 220-240/380-415 V
- Délka přívodního kabelu 110 cm
- Typ zástrčky bez zástrčky (elektrické připojení elektrikářem)
- Přiložené uživatelské příručky [DA, DE, FI, NO, SV]
Přednosti varné desky
- Typ ovládání ovládání Dual LightSlider
- Počet stupňů výkonu 17 stupňů výkonu
- Flexibilita varných zón 2 flexibilní varné zóny
- Funkce Boost Ano
- Ochrana skla Ano
- activeLight Plus Ne
- Pečicí senzor Ano
- Varný senzor Ne
- PerfectCook ready (senzor prodáván samostatně) Ano
- Funkce PowerMove Ano
- Automatický přenos nastavení Ano
- Quick Start Ano
- Funkce udržování tepla Ano
- Elektronické hodiny Ano
- Časovač časovač odpočítávání (na spotřebiči), Vypínač, časovač odpočítávání (na spotřebiči)
Přednosti odsavače par
- Extrémně tichý motor - Eco Silence Drive Ano
- Intenzivní stupeň Ano
- Možnost odloženého vypnutí Ano
- Připomenutí vyčištění filtru Ano
- Regulace výkonových stupňů 17 stupňů + 2 intenzivní
Konektivita
- Připojené spotřebiče s Home Connect Ano
- Funkce Home Connect vzdálené monitorování, vzdálený servis
Bezpečnost
- Bezpečnostní zařízení Vypnutí doby nečinnosti, Dětská pojistka, Vypnutí rozpoznání rozlití, Zablokování tlačítka, Vypnutí rozpoznání pánve/hrnce
- Ukazatel zbytkového tepla Samostatný