
DŮLEŽITÉ
Varná deska, která se přizpůsobí vašemu nádobí.
Díky funkci flexInduction se flexibilní varná zóna automaticky rozšíří, aby se na ni vešlo i velmi velké nádobí (až do průměru 24 cm). Pokud jedna zóna není pro vaše nádobí dostatečně velká, varná deska převezme kontrolu a aktivuje více induktorů pro rovnoměrný ohřev. Je to také vynikající varianta pro použití teppanyaki nebo grilovacích plátů o délce až 40 cm.
- Inteligentní XL varné zóny XL flexZones
S velikostí přichází flexibilita
Vaříte pro hosty? Experimentujete s novými recepty? Inteligentní XL varné zóny flexZones usnadňují vaření tím, že plynule přenášejí nastavení teploty při přesouvání hrnců nebo pánví a vždy poskytují okamžitou a přesnou kontrolu.A navíc nabízejí o 25 % více varného prostoru. . Umístěte nádobí libovolné velikosti - velké i malé - kamkoli budete chtít. Díky této mimořádné flexibilitě můžete své kulinářské ambice uskutečnit bez kompromisů.
Ovládání teploty na dosah ruky.
Oceňujete při ovládání varné desky maximální pohodlí? Pak zapomeňte na otočné voliče: díky senzorovému ovládání touchSlider+ stačí pouhý dotyk nebo posunutí prstu k ovládání úrovně výkonu varných zón. Regulace tepla probíhá v polovičních stupních až po maximální nastavení na stupni 9.
Řešení bez kompromisů
Systém inductionAir Plus kombinuje dva špičkové spotřebiče: indukční varnou desku a revoluční odsavač par integrovaný do varné desky. Díky této prostorově úsporné koncepci si můžete vychutnat více svobody při vaření a vytvořit si kuchyni podle svých vlastních představ. InductionAir Plus zaručuje účinný sací výkon při minimální hlučnosti. inductionAir Plus vás podpoří v tom, abyste byli dokonalým hostitelem, protože zaručuje vždy čerstvý vzduch bez zápachu a mastnoty při minimální hlučnosti.
Extrémně snadné čištění.
Indukční varná deska s odsáváním inductionAir Plus je vybavena trojnásobným systémem ochrany proti přetečení, který pomáhá zabránit vniknutí tekutin nebo jiných kapalných látek do varné desky. Pokud se do spotřebiče něco vylije, můžete jednoduše vyjmout tukový filtr a dát jej bezpečně umýt v myčce.
Inteligentní varná deska, která dělá život zajímavějším.
Díky domácím spotřebičům Siemens s podporou wi-fi a službě Home Connect je stále více zařízení propojených a inteligentních. Synergie spotřebičů s wi-fi, inteligentního softwaru a intuitivní aplikace přináší širokou škálu možností, které můžete snadno integrovat do své domácnosti. Některé z nich usnadňují práci, jiné otevírají zcela nové možnosti. Všechny však zefektivňují a zpříjemňují každodenní život jako nikdy předtím.
Rozlučte se s připálenými pokrmy.
Nebylo by pohodlnější nemuset při vaření myslet na nastavení teploty? A přitom stačí jednoduše aktivovat senzor fryingSensor Pro, který udržuje teplo v pánvi na konstantní úrovni. Můžete si vybrat z 11 teplotních možností. Inteligentní senzor kontroluje teplotu a zabraňuje připalování, takže pokaždé dosáhnete vynikajících výsledků. Nyní si tak můžete užívat svobody a soustředit se na své hosty bez obav z připálení jídla.
Automatický přenos varných zón.
Kterou varnou zónu máte použít? Inteligentní senzory flexZones umístěné pod sklokeramikou automaticky rozpoznají tvar a velikost hrnců a pánví a podle toho okamžitě spojí nebo rozdělí varné zóny. A pokud nádobí přemístíte, nastavení se okamžitě přenese. Jednoduše postavte nádobí na varnou desku, zapněte ji a užívejte si flexibilní vaření.
Objevte zcela nový svět lahodných receptů.
Připadá vám, že jste někdy zahlceni možnostmi, co uvařit? Teď už se tak cítit nemusíte. Svět receptů vám nabízí širokou škálu chutných receptů, které odpovídají vašemu životnímu stylu. Vyberte si z nich a přeneste ideální nastavení na svou varnou desku díky funkci fryingSensor. Užijte si flexibilitu přípravy a vychutnejte si výborné pokrmy. Chcete-li tuto funkci používat, jednoduše připojte varnou desku k registrovanému účtu Home Connect.
- Asistent fryingSensor Pro s hlasovým ovládáním
„Alexo, zeptej se mé varné desky, jak připravit...“
Připadá vám náročné zvolit tu správnou teplotu vaření pro své pokrmy? Zeptejte se Alexy – zná správnou odpověď. S asistentem fryingSensor Pro si můžete být jisti, že vždy připravíte dokonalé jídlo, aniž byste cokoli připálili.
Vytvořte si z varné desky osobní záležitost.
Chcete si varnou desku přizpůsobit podle vlastních preferencí? S tlačítkem Oblíbené je to snadné: můžete například integrovat varnou desku do své chytré domácnosti a pomocí tlačítka Oblíbené zapnout světlo v obývacím pokoji nebo naprogramovat nastavení opakujících se pokrmů, jako jsou dokonalá vajíčka k snídani, a usnadnit si tak rutinu. Stačí připojit varnou desku k registrovanému účtu Home Connect.
Více výkonu, když ho potřebujete.
Pomocí funkce powerBoost můžete zvýšit výkon indukční zóny až o 50 %. To vám může ušetřit až 35 % času, který obvykle strávíte ohříváním hrnců. Věnujte méně času čekání a více času míchání, dochucování a servírování svých skvělých pokrmů.
Nechte varnou desku pracovat.
Méně času strávíte nastavením funkcí varné desky: flexMotion si pamatuje nastavení jednotlivých nádob, takže je můžete volně přesouvat po varné desce. Nastavení teploty a časovače na nové varné zóně se automaticky přenese. Získáte tak více času na vaření.
Varenie s väčšou flexibilitou.
Stává se vám, že vás při vaření něco rozptýlí? Stačí si udělat krátkou přestávku: Díky funkci Pauza zastavíte ohřev varné desky a okamžitě zablokujete všechna tlačítka. Budete tak mít čas věnovat se i jiným věcem. Po uplynutí maximálně 10 minut můžete pokračovat ve vaření, jako by se nic nestalo. Užívejte si nově nabytou flexibilitu!
- Časovač s automatickým vypnutím varné zóny
Chytrý časovač, který má vše pod kontrolou.
Časovač s funkcí vypnutí bezpečně vypne varnou zónu po uplynutí zvolené doby vaření. Zabrání tak převaření a připálení pokrmu, když vás zaměstnává něco důležitého. Uvolněte se a nechte varnou desku pracovat za vás.
Eliminuje rizika a případná nebezpečí.
Tlačítkem dětská pojistka lze rychle a snadno ochránit každou indukční desku proti neoprávněnému ovládání. Dětská pojistka zablokuje všechny funkce desky stiskem jednoho tlačítka. Zamčení se odblokuje opětovným stiskem tlačítka a podržením na pár sekund.
Rychlá, bezpečná a velmi snadná údržba.
Ihned horké. Ihned studené. Užijte si benefity indukčního vaření od Siemens. Teplo je předáváno přímo do pánví a hrnců a jejich obsah je ohříván pomocí indukčních cívek, aniž by se zahřívala deska. Co to pro vás znamená: doba zahřátí je krátká, vyšší bezpečnost a deska se čistí o dost snadněji.
Vzdálená diagnostika šetří váš čas.
V případě problému s varnou deskou nabízí Home Connect pohodlnou možnost diagnostiky na dálku. Zákaznická podpora společnosti Siemens přistupuje k vašemu svolení online se zařízením, aby zjistila zdroj chyb. Pokud poruchu nelze vyřešit okamžitě a je nutná osobní návštěva našeho zákaznického servisu, dorazí profesionální technik společnosti Siemens dokonale připravený as požadovanými náhradními díly.
Zkontrolujte váš spotřebič - i když nejste doma.
Díky aplikaci Home Connect a funkci vzdálené monitorování máte vždy přehled, co se v kuchyni právě děje. Po dokončení vybraného programu dostanete všechny užitečné informace.
- Dostupnost náhradních dílů 15 let
Prodloužená životnost díky dostupnosti náhradních dílů.
Zavázali jsme se k dlouhodobému vztahu. Proto jsou naše náhradní díly pro velké domácí spotřebiče běžně dostupné až 15 let. Když už se tedy něco pokazí, budeme pro vás mít náhradní díly, aby váš spotřebič opět fungoval a fungoval hladce. Je to víc než jen oprava; jde o to zajistit, aby vaše spotřebiče měly výdrž a udržely krok s vaším životním stylem.
PODROBNOSTI
Flexibilita varných zón
- inteligentní XL flex varné zóny: extra dlouhé flexi indukční zóny (230 x 440 mm), ideální pro použití velkého nádobí nebo více velkých hrnců a pánví současně.
- varná zóna, přední levá: 230 mm, 220 mm, 2.2 kW (max. výkon 3.7 kW)
- varná zóna, zadní levá: 230 mm, 220 mm, 2.2 kW (max. výkon 3.7 kW)
- varná zóna, zadní pravá: 230 mm, 220 mm , 2.2 kW (max. výkon 3.7 kW)
- varná zóna, přední pravá: 230 mm, 220 mm, 2.2 kW (max. výkon 3.7 kW)
Komfort
- senzorové ovládání touchSlider+, touchSlider+: snadné nastavení a kontrola stupně výkonu díky dotykovému ovládacímu panelu
- tlačítko Oblíbené: přímý přístup k oblíbeným funkcím pomocí nastavitelného tlačítka (k dispozici s připojeným účtem Home Connect)
- 17 stupňů výkonu: přesné nastavení 17 stupňů výkonu (9 hlavních a 8 mezi stupňů výkonu)
- via HC app/MyButton: udržujte pokrmy teplé při přednastavené nízké úrovni výkonu
- timer (časovač vypnutí): vypne varnou zónu na konci nastaveného času (např. pro vařená vejce)
- minutka (lze zvolit místo časovače vypnutí): na konci nastaveného času zazní alarm (např. u těstovin)
- hlasitost lze přizpůsobit osobním preferencím a potřebám
Úspora času a efektivita
- powerBoost (nastavitelné pro všechny varné zóny): využijte o 50 % více výkonu při vaření např. vody, než nabízí nejvyšší standardní stupeň výkonu
- via HC app/MyButton: rozehřejte pánve rychleji než nabízí nejvyšší standardní stupeň výkonu, a zároveň ochraňte jejich povrchovou úpravu
- varné zóny se automaticky spojí nebo rozdělí podle tvaru a velikosti umístěného nádobí
- flexMotion: při přesunu hrnce do jiné varné zóny můžete stisknutím tlačítka přenést všechna předchozí nastavení do nové zóny
- při přesouvání hrnců na flexibilní varné zóně se nastavení okamžitě přizpůsobí a varná zóna se přizpůsobí velikosti nádobí
- automatický výběr varné zóny: po zapnutí varná deska automaticky zvolí varnou zónu, na kterou je umístěno nové nádobí
- quickStart: při zapnutí varná deska automaticky vybere varnou zónu s nádobím (umístěným ve vypnutém stavu)
- reStart: v případě neúmyslného vypnutí obnovte všechna předchozí nastavení opětovným zapnutím varné desky do 4 sekund
Speciální výbava
- fryingSensor Pro: zabraňuje připálení díky automatické regulaci teploty integrovaného senzoru
- only via HC app: jednoduše vyhledat správné nastavení teploty pro určitý pokrm prostřednictvím aplikace Home Connect
Konektivita
- vzdálená kontrola a ovládání: zkontrolujte, zda je varná deska vypnutá i když nejste doma, a najděte recepty nebo další funkce v aplikaci Home Connect
- Smart home trigger (nastavitelný prostřednictvím aplikace Home Connect): otevřete chytrý svět z varné desky (nutný je partnerský přístup)
- možnost aktualizace spotřebiče (dostupná s připojeným účtem Home Connect): udržujte spotřebič vždy aktuální s nejnovějším stavem softwaru
Design
- Hightrans Eco Matt: elegantní matný design, který je méně náchylný k viditelnému poškrábání a otiskům prstů.
- fazetový design studioLine, blackSteel
- studioLine: minimalistický design díky tmavé barvě zónového tisku
Bezpečnost
- 2-stupňový ukazatel zbytkového tepla pro každou varnou zónu: indikuje, které varné zóny jsou stále horké nebo teplé
- dětská pojistka: zabraní nechtěné aktivaci varné desky
- funkce Pauza: umožňuje pozastavit proces ohřevu, např. za účelem otevření dveří
- hlavní vypínač: vypnutí všech varných zón pouhým stisknutím tlačítka
- bezpečnostní vypínání: z bezpečnostních důvodů se ohřev vypne po nastaveném čase bez další uživatelské interakce (lze nastavit)
Instalace
- rozměry spotřebiče (V x Š x H): 223 x 812 x 520 mm
- rozměry pro vestavbu (V x Š x H) : 223 x 750 x 490 - 490 mm
- min. tloušťka pracovní desky: 16 mm
- příkon: 7.4 kW
- powerManagement: v případě potřeby omezí maximální výkon (závisí na pojistkové ochraně elektrické instalace)
- délka připojovacího kabelu: 110 cm, připojovací kabel je součástí spotřebiče
Příslušenství
- clean Air Plus odor filter, adaptér pro odvod vzduchu součástí spotřebiče
- možnost instalace do standardní 60 cm skříně
Integrovaný systém odvětrání
- Indukční varná deska s plně integrovaným vysoce výkonným systémem odvětrání par.
- Vhodné pro konfiguraci s potrubním nebo recirkulačním odtahem . Součástí varné desky je instalační příslušenství pro neřízenou recirkulaci, mimo jiné čtyři pachové filtry cleanAir Plus a adaptér pro odvod vzduchu. Příslušenství pro další možnosti instalace je k dispozici, podrobnosti naleznete v poznámkách k plánování.
- Estetický, plně integrovaný design ústí ventilačního systému se sklokeramickým, teplu odolným krytem, umožní volný pohyb a umístění varného nádobí.
- - automatické zapnutí odvětrání při použití varné zóny.
- - automatické spuštění ventilátoru po ukončení vaření pro odstranění všech zbytkových zápachů (ve velmi tichém režimu pomocí speciálního ventilátoru, 12 minut v režimu odsávaného vzduchu, 30 minut v režimu cirkulace, spuštění může být ukončeno ručně).
- Výkonný nízkošumový ventilátor s energeticky účinnou technologií BLDC. Vysoký výkon odsávání s velmi nízkým hlukem a příjemnými frekvencemi díky psychoakusticky a aerodynamicky optimalizovanému proudění vzduchu v interiéru a zapouzdřenému ventilátoru. Velmi stabilní vůči tlaku i při delších a složitějších potrubních trasách.
- Snadno a prakticky vyjímatelný tukový filtr a ochrana proti přetečení:
- - lze snadno vyjmout pomocí jedné ruky.
- - integrovaný, velkoplošný, silný tukový filtr z nerezové oceli s 12 filtračními vrstvami. Účinnost tukového filtru je 94 %.
- - všechny části se snadno čistí, lze je mýt v myčce nádobí a jsou odolné vůči teplu.
- - (horní) jednotka ochrany proti přetečení má kapacitu 200 ml, což postačuje pro všechny klasické incidenty při vaření a kondenzační podmínky.
- - výkonný drenážní systém zajistí ochranu i při množství přesahující 200 ml tekutin.
- - (dolní) jednotka ochrany proti přetečení má kapacitu 700 ml, takže pokryje i větší incidenty při vaření. Zásobník je vhodný pro mytí v myčce nádobý, je snadno přístupný a vyjímatelný.
- - celková ochranná kapacita je 900 ml (200ml + 700ml).
- - ventilátor a motor ventilátoru jsou vodotěsné.
- Výkon odvětrávacího systému:
- - hodnoty výkonu (dle EN 61591): min. normální stupeň 154 m3/h , max. normální stupeň 500 m3/h , max. boost/intenzivní 622 m3/h.
- - hodnoty výkonu při recirkulaci: min. normální stupeň: 132 m3/h , max. normální stupeň: 499 m3/h , max. boost/intenzivní: 595 m3/h.
- - hodnoty hlučnosti při odtahu (dle EN 60704-3): min. normální stupeň: 42 dB re 1 pW, max. normální stupeň: 69 dB re 1 pW, max. boost/intenzivní nastavení: 74 dB re 1 pW.
- - hodnoty výkonu při cirkulaci: min. normální stupeň: 41 dB re 1 pW, max. normální stupeň: 68 dB re 1 pW, max. boost/intenzivní stupeň: 72 dB re 1 pW.
- - účinnost tukového filtru (dle EN 61591): 94 %.
- Spotřeba energie a energetická účinnosti (dle EU 65/2014):
- - třída spotřeby energie: B (na stupnici třídye energetické účinnosti od A+++ do D).
- - třída účinnosti odsávání: A .
- - průměrná spotřeba energie: 57 .
- - třída účinnosti tukového filtru: B .
- - hodnoty hlučnosti při normální stupni a maximálním stupni: 42 dB a 69 dB .
- pro recirkulaci: 2 x 2 kusy přímo integrovaných vysoce účinných pachových filtrů cleanAir Plus
- - velmi účinná redukce pachů a aroma při vaření (např. rybích pokrmů).
- - velký povrch filtru zajistí optimální redukci pachových stop.
- - funkce ochrany proti pylu: filtr zadržuje extrémně vysoké množství pylu ve vzduchu a deaktivuje alergeny, které filtr zadržuje.
- - životnost pachové filtru při intenzivním vaření je cca 360 hodin (ne regenerační filtr).
- - velmi nízká hlučnost.
- - velmi snadný přístup a vyjímání filtrů shora.
- - náhradní cleanAir filtry HZ9VRCR0.
- Pro provoz s odvětráním jsou nutné 4 integrované, vysoce výkonné akustické filtry pro získání výrazně nižší hladiny hluku a vylepšené psychoakustiky.
Poznámky k plánování a instalaci
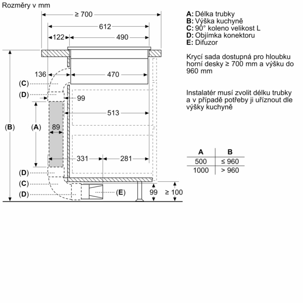
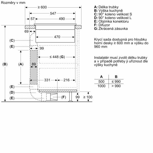
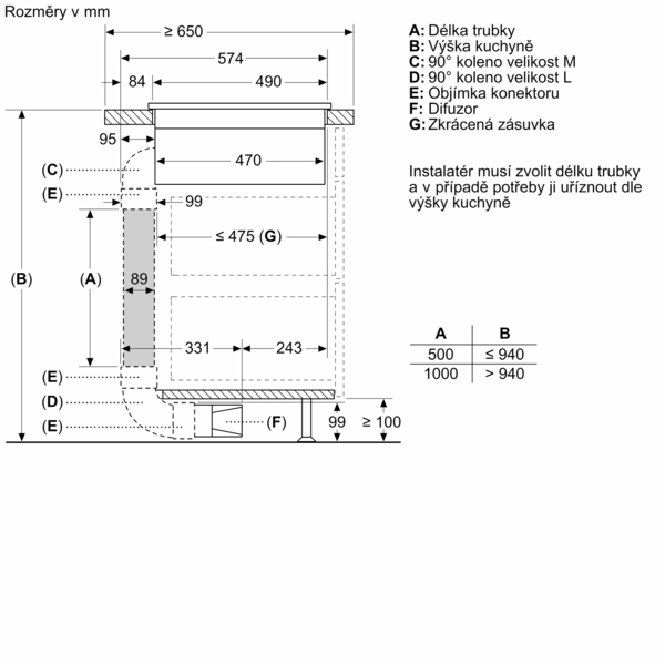
- Vhodný pro instalaci s potrubím nebo s recirkulací ve 4 různých variantách (bez potrubní recirkulace - neřízená, s částečnou a plně řízenou recirkulací nebo s odtahem pomocí potrubní). Součástí varné desky je instalační příslušenství pro neřízenou recirkulaci, mimo jiné čtyři pachové filtry cleanAir Plus a adaptér pro odvod vzduchu. Dodávané příslušenství umožňuje snadnou a rychlou instalaci a lze jej plánovat ve všech hloubkách pracovní desky ≥ 60 cm. Pro jiné typy instalace doporučujeme použít jednu z následujících sad příslušenství:
- - HZ9VDKR1 montážní sada pro provoz s částečnou cirkulací pro varné desky s odsáváním, pro hloubku pracovní desky ≥ 60 cm s max. výškou pracovní desky 960 mm. HZ9VDKR0 montážní sada pro provoz s částečnou cirkulací pro varné desky s odsáváním, pro hloubku pracovní desky ≥70 cm s max. výškou pracovní desky 960 mm.
- - HZ9VEDU0 pro provoz s odvětráním.
- Pro konfiguraci s plnou nebo částečnou recirkulací vzduchu nebo pro provoz odvětrání nabízíme širokou nabídku komponentů plochého potrubí pro vaše individuální plány a dispozici prostoru.
- Doporučení pro plánování:
- - spotřebič umožňuje instalaci jak do ostrůvku, tak i ke stěně.
- - spotřebič vyhovuje Zkoušce plamenem (podle IEC 60695-11-5) a třídě hořlavosti V2 (podle UL94).
- - max. hloubka zapuštění u modelů s rámečkem je 223 mm, max. hloubka zapuštění u modelů bez rámečku je 227 mm.
- - spotřebič musí být volně přístupný zespodu (tj. pro přístup ke spodní jednotce pro zachycení kapaliny.
- - pod varnou desku s integrovaným ventilačním systémem není nutné instalovat mezidno. Zásuvky a / nebo police musí být odnímatelné. Zadní panel korpusu může být zachován, ovšem je nutné zhotovit výřez pro výstup vzduchu (doporučení o umístění a velikosti otvoru naleznete v montážním návodu).
- - provoz s neřízenou recirkulací vyžaduje svislý otvor min. 25 mm za zadní stěnou nábytku. Pro ideální výkon doporučujeme velikost otvoru 50 mm.
- - minimální tloušťka pracovní desky u modelů s rámečkem je 16 mm, u modelů bez rámečku dle standardních instalačních návodů. Instalace do ještě tenčích pracovních desek je možná, doporučujeme objednat sadu pod označením 626792 (lze objednat přes autorizovaný servis).
- - celková hmotnost spotřebiče je 26 kg. Při použití tenší pracovní desky je zapotřebí podpěrné konstrukce. Je třeba brát na zřetel i hmotnost spotřebiče. Prosím, v tomto případě kontaktujte výrobce pracovní desky.
- - u provozu s částečně řízenou nebo neřízenou recirkulací musí být v oblasti soklu dodržen otvor pro zpětný tok vzduchu ≥ 400 cm². Otvor lze realizovat pomocí dekoračních mřížek, lamelových mřížek nebo jemně zkrácených soklů v závislosti na sortimentu výrobce kuchyňského nábytku.
- - výstup vzduchu na zadní straně spotřebiče lze přímo napojit s vnějším plochým potrubním prvkem (NW 150).
- - tlakově stabilní ventilátor umožňuje také delší a složitější potrubí až do 8 m se třemi ohyby 90 ° při zachování odpovídajícího výkonu.
- - při instalaci varné desky s odsáváním v provozu odvětrání spojeným s krbem, musí být zdroj napájení vybaven vhodným bezpečnostním vypínačem. Tato bezpečnostní pojistky není nutná pro provoz s recirkulací vzduchu.
- - při provozu s odvětráním by měla být instalována zpětná klapka s maximálním otevíracím tlakem 65 Pa.
TECHNICKÉ ÚDAJE
Hlavní body
- Rozměry spotřebiče 223x812x520 mm
- Typ varné desky indukční varná deska s integrovaným odsáváním
- Počet varných zón, které mohou být použity současně 4
- Typ rámečku nerezový rámeček
- Způsob vedení vzduchu Konvertibilní
- Max. výkon odvětrání 500 m³/h
- Akustický výkon při maximálních otáčkách (2010/30/EC) 69 dB
- Připojené spotřebiče s Home Connect Ano
Obecné
- Barva spotřebiče černá, matná
- Šířka 80 cm
- Počet varných zón, které mohou být použity současně 4
- Rozměry varných zón 4 x (22,0 x 23,0 cm)
- Výkon varných zón 4 x 2.2 (3.7) kW
- Typ rámečku nerezový rámeček
- Počet sálavých varných zón 0
- Počet indukčních varných zón 4
- Funkce Boost všechny varné zóny
- Druh ovládacích a signalizačních prvků Posuvník
- Způsob vedení vzduchu Konvertibilní
- Max. výkon odvětrání 500 m³/h
- Výkon při intenzivním stupni - provoz odvětrávání 622 m³/h
- Max. výkon recirkulace vzduchu 499 m³/h
- Výkon ventilátoru při intenzivním stupni - recirkulace 595.0 m³/h
- Akustický výkon při maximálních otáčkách (2010/30/EC) 69 dB
- Zvýšení akustického výkonu (2010/30/ES) 74 dB
- Hlučnost 69 dB(A) re 1pW
- Spotřeba energie varné desky 185,0 Wh/kg
- Dodávané příslušenství 1 x Clean Air Plus pach filtr
Rozměry a váha
- Rozměry spotřebiče 223x812x520 mm
- Rozměry zabaleného spotřebice (v x š x h) 430 x 945 x 665 mm
- Minimální výška niky 490 mm
- Maximální výška niky 490 mm
- Minimální šířka niky 750 mm
- Maximální šířka niky 750 mm
- Hloubka niky 223 mm
- Výška spotřebiče nad pracovní plochou 6,0 mm
Technické specifikace
- Příkon 7400 W
- Napětí 220-240/380-415 V
- Délka přívodního kabelu 110 cm
- Typ zástrčky bez zástrčky (elektrické připojení elektrikářem)
- Přiložené uživatelské příručky [DE]
- Přednosti varné desky
- Typ ovládání Multitouch+
- Počet stupňů výkonu 17 stupňů výkonu
- Flexibilita varných zón 2 flexibilní varné zóny
- Funkce Boost Ano
- Ochrana skla Ne
- activeLight Plus Ne
- Pečicí senzor Ano
- Varný senzor Ne
- PerfectCook ready (senzor prodáván samostatně) Ne
- Funkce PowerMove Ne
- Automatický přenos nastavení Ano
- Quick Start Ano
- Funkce udržování tepla Ne
- Elektronické hodiny Ano
- Časovač časovač odpočítávání (lze zvolit místo časovače vypnutí), Vypínač
Přednosti odsavače par
- Extrémně tichý motor - Eco Silence Drive Ano
- Intenzivní stupeň Ano
- Možnost odloženého vypnutí Ano
- Připomenutí vyčištění filtru Ano
- Regulace výkonových stupňů 9 stupňů + 2 intenzivní
Konektivita
- Připojené spotřebiče s Home Connect Ano
- Funkce Home Connect vzdálené monitorování, vzdálený servis
Bezpečnost
- Bezpečnostní zařízení Vypnutí doby nečinnosti, Dětská pojistka, Vypnutí rozpoznání rozlití, Vypnutí rozpoznání pánve/hrnce
- Ukazatel zbytkového tepla Samostatný